Aktuell
Advent - oder allemannisch: "S´goht drgega!"
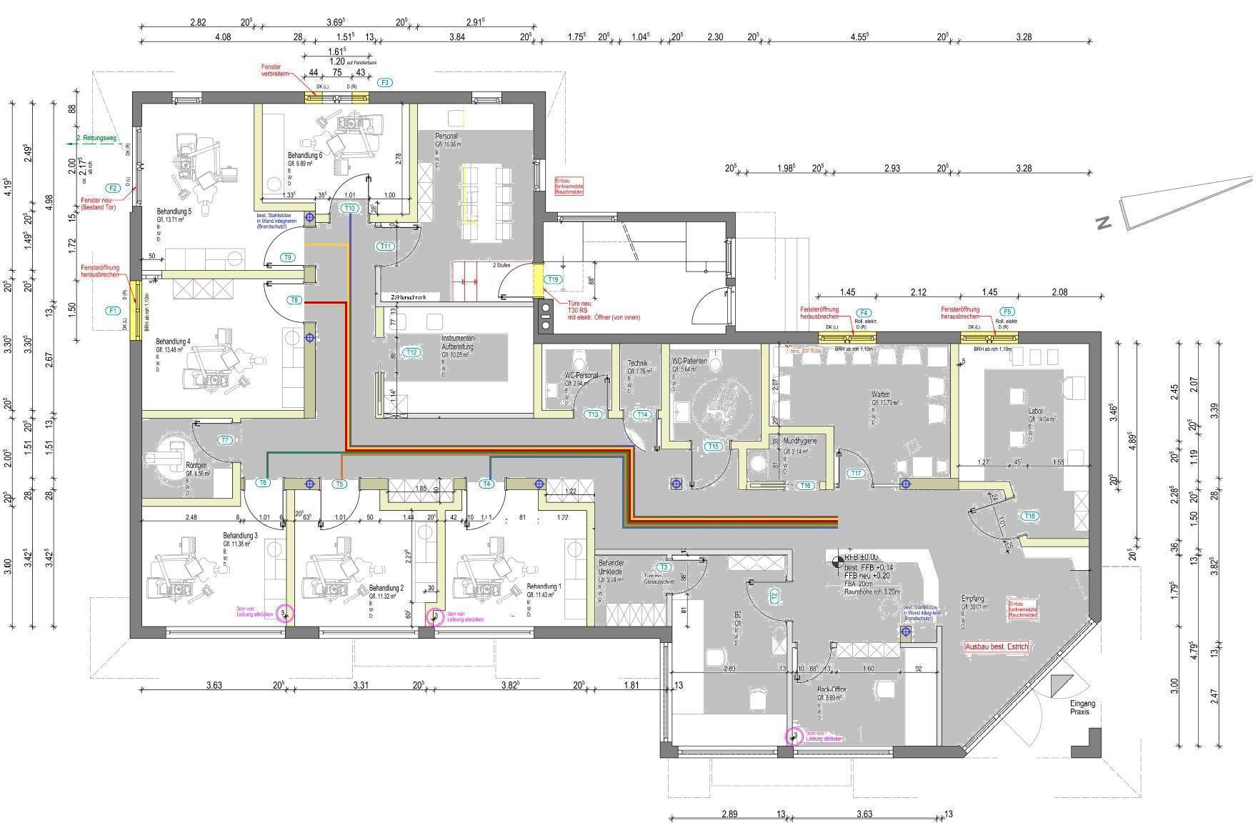
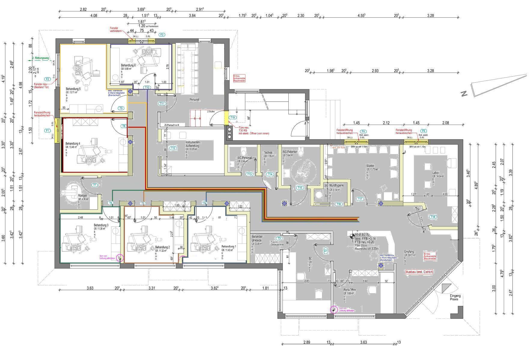
Auch die neuen Praxisräume am Rathausplatz 8 kommen voran

Unsere Hygiene-Maßnahmen sind darauf ausgelegt, dass Ansteckungen vermieden werden. Masken werden in Zahnarztpraxen seit Jahrzehnten getragen ... und saubere, desinfizierte Hände sind selbstverständlich. Gerne informieren wir Sie...
Wir wünschen schöne Tage - gesund
Wie bei alledem das Wetter wird - sehen Sie hier